








Spatiu comercial intr-un ansamblu nou de locuinte situat in cartierul Dambu Rotund, in zona strazii Lombului, la 1 minut de Taietura Turcului.
Beneficiaza de o compartimentare excelenta, potrivita atat ca destinatie comerciala cat si ca spatiu cu destinatie birouri.
Ansamblul este unul modern, construit cu materiale de buna calitate pe un regim de inaltime S+P+5E.
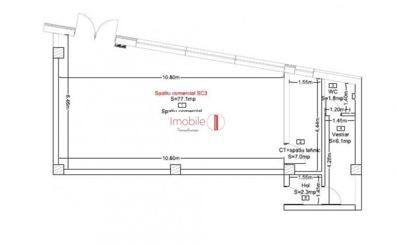
Spatiul este situat la parterul imobilului, fiind compus din:
~sala prezentare
~1 Grup sanitar
~Oficiu/vestiar
~ 2 spatii de depozitare.
Suprafața utilă: 77 mp
Se ofera alaturi de 1 parcare exterioara.
PRET Inchriere: 700 euro
Se preda la stadiul finisat.