



















Va propunem spre vanzare o casa PREMIUM cu 500 mp teren in Chinteni.
Comision zero la cumparare!
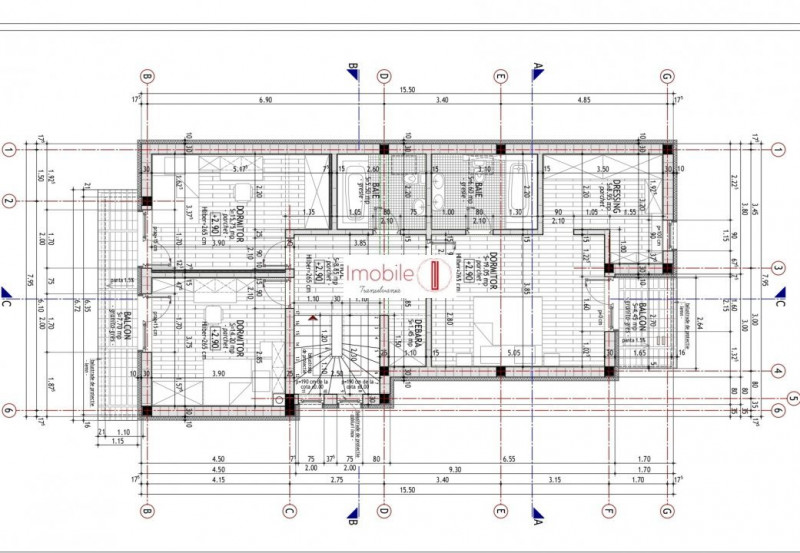
Imobilul este construit pe un regim de inaltime P+E, are suprafata utila de 160mp dispusa astfel:
Parter: living, bucatarie +loc de luat masa, baie, terasa;
Etaj: 3 dormitoare, hol, 2bai, 2 balcoane;
Se preda la stadiul de semifinisat, cu centrala termica proprie, incalzire in pardoseala, tamplarie termopan cu 3 sticle, instalatii trase la pozitie, pereti tencuiti, Izolatie exteriora polistiren de 15 cm.
Curtea se preda imprejmuita cu gard si trotuare amenajate.
Utilitati: apa, curent, gaz, canalizare.
Oferta se adreseaza persoanelor care isi doresc sa locuiasca intr-o zona linistita aproaoe de oras.
Pentru detalii suplimentare, nu ezitati sa ne contactati.